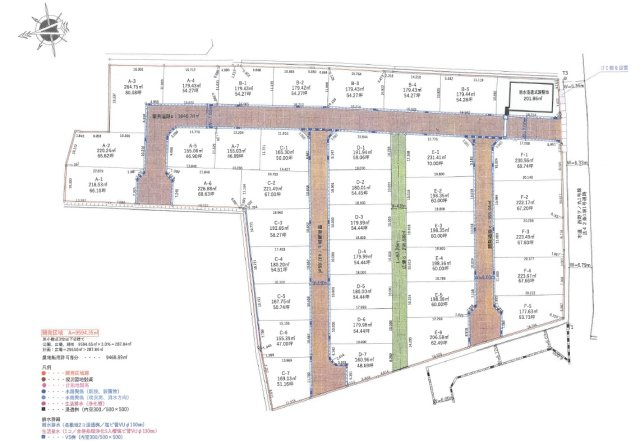
野市町西野建築条件付き 売土地 F-2区画(全37区画)

1,612.8万円

高知県香南市野市町西野

土佐くろしおごめん・なはり線「のいち」駅徒歩6分

市営「中町」バス停

東部「武市橋」バス停

価格
1,612.8万円
土地面積(坪数)
222.17㎡(67.2坪)
所在地
高知県香南市野市町西野
築年
0年(-)
駐車
-
交通

土佐くろしおごめん・なはり線のいち」駅 徒歩6分

市営「中町」バス停下車 徒歩2分

東部「武市橋」バス停下車 徒歩5分

野市町西野建築条件付き 売土地 F-2区画(全37区画)の基本情報

物件名
野市町西野建築条件付き 売土地 F-2区画(全37区画)
価格
1,612.8万円
土地面積
222.17㎡
築年月
0年(-)
総区画数
37区画
所在地
高知県香南市野市町西野
交通

土佐くろしおごめん・なはり線のいち」駅 徒歩6分

市営「中町」バス停下車 徒歩2分

東部「武市橋」バス停下車 徒歩5分

野市町西野建築条件付き 売土地 F-2区画(全37区画)の詳細情報

設備条件
  • 閑静な住宅地
設備(その他)
    -
駐車場/月額
-/0円
土地権利
所有権
国土法届出
不要
用途地域
無指定
区画数
37区画 / 22戸
管理形態
-
管理員の勤務形態
-
管理会社
-
取引態様
一般媒介
引渡し
相談
開発許可番号
高知県指令6高東土第30-3号
備考
四国銀行野市支店まで437mです。駅から徒歩6分圏内に立地しています。土地の購入をお考えの方、コチラの売地をご覧ください。こちらの土地は前面道路6m以上です。当社は迅速な対応でもってお客様のご要望にお応えいたします。ぜひ不動産探しのお手伝いは当社にお任せください。ご連絡をお待ちしております。

野市町西野建築条件付き 売土地 F-2区画(全37区画)のコメント(おすすめポイント)

四国銀行野市支店まで437mです。こちらの土地は前面道路6m以上です。売地をお探しの方におすすめの土地です。駅から徒歩6分圏内に立地しています。お客様の不動産探しをスタッフがお手伝いいたしますので、質問・疑問などがあればお気軽にお問い合わせください。

野市町西野建築条件付き 売土地 F-2区画(全37区画)で募集中の物件

  1. 67.20坪 (222.17㎡)

    1,6128,000円(24万円/坪)

周辺施設

  • ファミリーマート 野市町西野店の画像

    コンビニエンスストア

    ファミリーマート 野市町西野店

    278m(4分)

  • フジグラン 野市店の画像

    ショッピングセンター

    フジグラン 野市店

    324m(5分)

  • ファミリーマート のいち駅前店の画像

    コンビニエンスストア

    ファミリーマート のいち駅前店

    412m(6分)

  • 四国銀行野市支店の画像

    銀行

    四国銀行野市支店

    437m(6分)

  • 野市郵便局の画像

    郵便局

    野市郵便局

    460m(6分)

  • 野市小学校の画像

    小学校

    野市小学校

    526m(7分)

  • 香南市役所の画像

    市役所・区役所

    香南市役所

    916m(12分)

  • マルナカ 野市店の画像

    スーパー

    マルナカ 野市店

    978m(13分)

  • 野市中学校の画像

    中学校

    野市中学校

    1820m(23分)

近隣の物件

  1. 香南市野市町西野

    - (198.36㎡)

    1,440万円

  2. 香南市野市町西野

    - (180.00㎡)

    1,3065,600

  3. 香南市野市町西野

    - (160.96㎡)

    1,1685,600

  4. 香南市野市町西野

    - (220.24㎡)

    1,5988,800

よく見られている物件

  1. 高知市西秦泉寺

    - (216.98㎡)

    2,298万円

  2. 高知市西秦泉寺

    - (166.68㎡)

    1,350万円

  3. 高知市神田

    - (162.71㎡)

    8857,800

  4. 南国市大そね甲

    - (117.05㎡)

    1,0266,000

野市町西野建築条件付き 売土地 F-2区画(全37区画)

お気軽にお問い合わせください

無料お問い合わせ

株式会社 タイヘイ

088-831-1885

9:00~18:00

(休:不定休)