百石町 3号地 新築戸建

12月19日 値下げ

2,980万円

高知県高知市百石町2丁目

とさでん交通桟橋線「桟橋通二丁目」駅徒歩6分

とさでん「コミュニティー住宅前」バス停

とさでん「竹島高銀前」バス停

価格
2,980万円
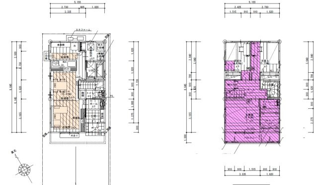
間取り
3LDK+S(納戸)
土地面積
94.02㎡
所在地
高知県高知市百石町2丁目
交通

とさでん交通桟橋線桟橋通二丁目」駅 徒歩6分

とさでん「コミュニティー住宅前」バス停下車 徒歩3分

とさでん「竹島高銀前」バス停下車 徒歩6分

建物面積
87.46㎡
築年月
2026年6月(予定)

物件の特徴

  • TVモニタ付きインターホン

  • カウンターキッチン

  • 浴室乾燥機

セールスポイント

高知百石町郵便局まで114mです。駅から徒歩6分圏内に立地しています。87.46㎡の建物面積がある物件です。浴室は冷めた湯を再び沸かせる追焚機能が付いています。不動産をお探しなら、当社にお任せください。お住まいが変われば、生活が変わります。当社では、よりよい生活を送るためのお手伝いを致します。ぜひご利用くださいませ。

ポイント

スーパーが近い 浴室1坪以上 浴室暖房 温水洗浄便座 システムキッチン

担当者のコメント

小田 靖之

家から114mの場所に高知百石町郵便局があります。駅から徒歩6分圏内に位置する物件です。子供が外でのびのびできるような、車通りの少ない地域です。コチラの物件は、新築の戸建て物件です。新生活を新築で始めませんか。高知市のとさでん交通桟橋線桟橋通二丁目近くで住まい探しをするのであれば、まずは当社スタッフにお声かけ下さい。お客様に合った不動産をご紹介させていただきます。

基本情報

販売戸数
2戸
総戸数
5戸
間取り / 詳細
3LDK+S(納戸)
LDK 16.4帖/洋室 4.6帖/洋室 5.2帖/洋室 6.4帖/S 6.6帖
向き
南西
建物面積(坪数)
87.46㎡(26.45坪)
土地面積(坪数)
94.02㎡(28.44坪)
建ぺい率 /
容積率
60%/200%
築年月
2026年6月(予定)
駐車場 / 月額
有(2台) / -
土地権利
所有権
土地
(敷金 / 保証金)
- / -
建物構造
木造 / 2階建
傾斜地部分面積
-
路地状敷地
-
私道負担面積
-
セットバック
高圧線下面積
-
施工会社
-
用途地域
第一種中高層住居専用
地目 / 地勢
宅地 / 平坦
接道状況
一方(南西 公道 9.0m 間口 6.3m)
国土法届出要否
不要
都市計画
市街化区域
総区画数 /
販売区画数
5区画/2区画
現況
未完成
その他
法令上の制限
景観法/都市再生特別地区/日影制限有/建築基準法第22条区域
取引態様
一般媒介
引渡し
相談
その他条件
上下水道工事・分担金一括:43万9,500円
取引条件の
有効期限
2026年04月21日

設備条件

設備条件
  • 陽当り良好 / バルコニー / 公営水道 / 公共下水 / 照明器具付き / 駐車2台可 / 食器洗い乾燥機 / システムキッチン / カウンターキッチン / 追焚機能浴室 / 浴室乾燥機 / 温水洗浄便座 / トイレ2ヶ所 / 浴室1坪以上 / 浴室暖房 / 床暖房 / ウォークインクロゼット / 屋根裏収納 / TVモニタ付インターホン / 複層ガラス
設備(その他)
    -

その他

物件番号
81926572
管理コード
-
建築確認番号
第R06-00065号
情報更新日
2026年04月07日
次回更新予定日
2026年04月21日
取扱会社
  • 株式会社 タイヘイ
  • 高知県高知市桟橋通6丁目8番39号 
  • TEL:088-831-1885
  • 高知県知事 (12) 第001377号
  • 公益社団法人 高知県宅地建物取引業協会
備考
家から114mの場所に高知百石町郵便局があります。人気のIHキッチンです。新築の戸建てで気分爽快な生活を送りましょう。お湯を温め直せる追い焚き機能付きです。高知市での住まい探しをサポート致します。ご希望の条件などがお決まりなら、当社スタッフまで是非お伝えください。お問い合わせをお待ちしております。

◆物件特徴のご案内◆
・フラット35S金利Aタイプ仕様
・全室複層ガラス IHクッキングヒーター 
・浴室暖房乾燥機 浴室1坪以上 追焚機能 
・玄関収納 
・1F 16.41LDK 
 2F 4.68帖5.23帖6.41帖 小屋裏収納 6.67帖
・システムキッチン カウンターキッチン
 温水洗浄便座(1F,2F)

周辺施設

  • ファミリーマート 百石町二丁目店の画像

    コンビニエンスストア

    ファミリーマート 百石町二丁目店

    57m(1分)

  • 高知百石町郵便局の画像

    郵便局

    高知百石町郵便局

    114m(2分)

  • ローソン 百石町二丁目の画像

    コンビニエンスストア

    ローソン 百石町二丁目

    295m(4分)

  • 四国銀行潮江支店の画像

    銀行

    四国銀行潮江支店

    319m(4分)

  • 潮江小学校の画像

    小学校

    潮江小学校

    330m(5分)

  • マルナカ 百石店の画像

    スーパー

    マルナカ 百石店

    343m(5分)

  • プロマート 百石店の画像

    スーパー

    プロマート 百石店

    356m(5分)

  • 潮江中学校の画像

    中学校

    潮江中学校

    861m(11分)

支払いシミュレーション

月々の支払額

※実際の金額と異なる場合があります。

購入希望物件価格
万円
頭金
万円
金利
%
返済額(ボーナス1回分)
万円
返済期間

※ボーナスは自動で年2回分で計算されます。

近隣の物件

  1. 石立町 中古戸建 

    高知市石立町

    3SLDK (105.15㎡)

    3,980万円

  2. 長浜 中古戸建

    高知市長浜

    3LDK (79.49㎡)

    3,360万円

  3. 瀬戸東町3丁目 新築戸建 3号棟(全3棟)

    高知市瀬戸東町3丁目

    4LDK (107.64㎡)

    2,898万円

  4. 横浜南町 中古戸建 

    高知市横浜南町

    4LDK (152.29㎡)

    4,200万円

よく見られている物件

  1. 福井町 中古戸建

    高知市福井町

    2LDK (80.28㎡)

    1,600万円

  2. 新本町 中古戸建 (未入居物件)

    高知市新本町2丁目

    3LDK+3S(納戸) (99.57㎡)

    4,580万円

  3. 海老ノ丸 中古戸建 C区画 (未入居物件 モデルハウス)

    高知市海老ノ丸

    4LDK+S(納戸) (133.05㎡)

    4,580万円

  4. 福井町 新築戸建 A号地(全5区画) 

    高知市福井町

    4LDK+S(納戸) (110.96㎡)

    3,980万円

百石町 3号地 新築戸建

百石町 3号地 新築戸建

2,980万円

-

3LDK+S(納戸)(87.46㎡)

お気軽にお問い合わせください

無料お問い合わせ

株式会社 タイヘイ

088-831-1885

9:00~18:00

(休:不定休)