福井町 新築戸建

3,180万円

高知県高知市福井町

土讃線「高知商業前」駅徒歩24分

とさでん交通「旭ヶ丘団地(高知県)」バス停

とさでん交通「横内(高知県)」バス停

価格
3,180万円
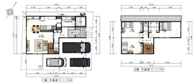
間取り/建物面積
3LDK/90.25㎡
所在地
高知県高知市福井町
築年
2026年3月(予定)
駐車
有(3台)
交通

土讃線高知商業前」駅 徒歩24分

とさでん交通「旭ヶ丘団地(高知県)」バス停下車 徒歩9分

とさでん交通「横内(高知県)」バス停下車 徒歩9分

福井町 新築戸建の基本情報

物件名
福井町 新築戸建
価格
3,180万円
建物面積
90.25㎡
土地面積
34.99坪(115.70㎡)
築年月
2026年3月(予定)
総戸数
1戸
所在地
高知県高知市福井町
交通

土讃線高知商業前」駅 徒歩24分

とさでん交通「旭ヶ丘団地(高知県)」バス停下車 徒歩9分

とさでん交通「横内(高知県)」バス停下車 徒歩9分

福井町 新築戸建の詳細情報

設備条件
  • 閑静な住宅地
  • 駐車3台可
  • 耐震構造
設備(その他)
    -
駐車場/月額
有(3台)/0円
土地権利
所有権
国土法届出
不要
用途地域
第一種低層住居専用
取引態様
一般媒介
引渡し
相談
備考
戸建て物件をご検討なら、コチラの新築の物件をご覧ください。火災などの非常時にも安心して避難ができる、準耐火物件です。当社スタッフが高知市や土讃線高知商業前付近の一戸建て探しをサポートいたします。お気軽に地域の情報などもお尋ねください。

福井町 新築戸建のコメント(おすすめポイント)

こちらの物件は準耐火構造となっており、万一の火災時も安心です。設備も充実している新築戸建ての物件はいかがでしょうか。高知市に特化した当社では、多種多様な不動産情報をご用意しております。不動産情報と併せて地域情報もお伝え致しますので、まずはお気軽にお問い合わせください。

福井町 新築戸建で募集中の物件

  1. 27.30坪 (90.25㎡)

    3,180万円(116.48万円/坪)

周辺施設

  • エースワン 横内店の画像

    スーパー

    エースワン 横内店

    641m(9分)

  • 高知市塚ノ原窓口センターの画像

    市役所・区役所

    高知市塚ノ原窓口センター

    955m(12分)

  • サンプラザ 塚ノ原店の画像

    スーパー

    サンプラザ 塚ノ原店

    976m(13分)

  • 横内小学校の画像

    小学校

    横内小学校

    1019m(13分)

  • 旭中学校の画像

    中学校

    旭中学校

    1395m(18分)

近隣の物件

  1. 高知市石立町

    3SLDK (105.15㎡)

    3,980万円

  2. 高知市長浜

    3LDK (79.49㎡)

    3,360万円

  3. 高知市瀬戸東町3丁目

    4LDK (107.64㎡)

    2,898万円

  4. 高知市横浜南町

    4LDK (152.29㎡)

    4,200万円

よく見られている物件

  1. 高知市福井町

    2LDK (80.28㎡)

    1,600万円

  2. 高知市新本町2丁目

    3LDK+3S(納戸) (99.57㎡)

    4,580万円

  3. 高知市海老ノ丸

    4LDK+S(納戸) (133.05㎡)

    4,580万円

  4. 高知市福井町

    4LDK+S(納戸) (110.96㎡)

    3,980万円

福井町 新築戸建

お気軽にお問い合わせください

無料お問い合わせ

株式会社 タイヘイ

088-831-1885

9:00~18:00

(休:不定休)