高知市口細山 新築戸建 1号地(全5区画) 

4,280万円

高知県高知市口細山

土讃線「高知商業前」駅徒歩16分

とさでん交通「塚の原分岐」バス停

とさでん交通「塚の原分岐西」バス停

価格
4,280万円
間取り
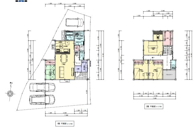
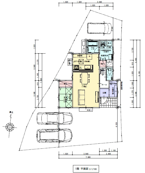
4LDK+S(納戸)
土地面積
162.01㎡
所在地
高知県高知市口細山
交通

土讃線高知商業前」駅 徒歩16分

とさでん交通「塚の原分岐」バス停下車 徒歩3分

とさでん交通「塚の原分岐西」バス停下車 徒歩4分

建物面積
102.96㎡
築年月
2026年4月(予定)

物件の特徴

  • TVモニタ付きインターホン

  • 浴室乾燥機

セールスポイント

こちらの物件は最寄りのスーパー「サンプラザ 塚ノ原店」が380m以内にあります。浴室乾燥機のあるお風呂場は洗濯物を干すときにも便利です。浴室1坪以上とゆとりある空間となっており、入浴時ものんびりできます。家族と明るく楽しい生活を送るためにも、物件探しを始めませんか。住まい選びは人生を左右するほど重要なものです。ぜひ当社にお任せください。

ポイント

トイレ2ヶ所 LDK15帖以上 IHクッキングヒーター 浴室1坪以上 バルコニー

担当者のコメント

小田 靖之

サンプラザ 塚ノ原店まで徒歩5分と近くて、買い物を気軽に済ませたい主婦の方に嬉しい立地です。TVインターホン付きでお子様のお留守番も安心です。新築戸建てはみんなの夢です。スーパーが近くにあるので、買い物が楽です。住まい探しをするなら、信頼と実績のある当社にご用命ください。人生に一度の大きな買い物が失敗しないように、しっかりとサポート致します。

基本情報

販売戸数
5戸
総戸数
5戸
間取り / 詳細
4LDK+S(納戸)
LDK 16.0帖/和室 3.0帖/洋室 5.2帖/洋室 5.2帖/洋室 6.0帖/S 2.0帖
向き
建物面積(坪数)
102.96㎡(31.14坪)
土地面積(坪数)
162.01㎡(49.00坪)
建ぺい率 /
容積率
60%/200%
築年月
2026年4月(予定)
駐車場 /
月額料金
有(3台) 0円
土地権利
所有権
土地
(敷金 / 保証金)
- / -
建物構造
木造 / 2階建
傾斜地部分面積
-
路地状敷地
-
私道負担面積
-
セットバック
高圧線下面積
-
施工会社
-
用途地域
第一種中高層住居専用
地目 / 地勢
宅地 / 高台
接道状況
一方(東 公道)
国土法届出要否
不要
都市計画
市街化区域
総区画数 /
販売区画数
5区画/5区画
現況
未着工
その他
法令上の制限
景観法/宅地造成及び特定盛土等規制法/都市再生特別地区/日影制限有/建築基準法第22条区域
取引態様
一般媒介
引渡し
相談
その他条件
水道負担金一括:39万2,000円  水道引込料一括:8万円
取引条件の
有効期限
2026年03月19日

設備条件

設備条件
  • 閑静な住宅地 / フローリング / バルコニー / 都市ガス / 公営水道 / 公共下水 / 駐車3台可 / 食器洗い乾燥機 / システムキッチン / 浴室乾燥機 / トイレ2ヶ所 / 浴室1坪以上 / 浴室暖房 / 床暖房 / ウォークインクロゼット / 収納豊富 / TVモニタ付インターホン / 複層ガラス
設備(その他)
    -

その他

物件番号
99512674
管理コード
-
建築確認番号
第R07-00704号
情報更新日
2026年03月05日
次回更新予定日
2026年03月19日
取扱会社
  • 株式会社 タイヘイ
  • 高知県高知市桟橋通6丁目8番39号 
  • TEL:088-831-1885
  • 高知県知事 (12) 第001377号
  • 公益社団法人 高知県宅地建物取引業協会
備考
近くのサンプラザ 塚ノ原店まで徒歩5分で行けます。建物面積は102.96㎡となっており広々とした空間で生活することができます。浴室乾燥機のあるお風呂場は洗濯物を干すときにも便利です。多種多様な不動産情報を取り扱う当社なら、きっとお客様の住まい探しに役立てることでしょう。お引っ越しをお考えの方からのお問い合わせをお待ちしております。

◆物件特徴のご案内◆
・フラット35S金利Aタイプ仕様
・全室複層ガラス IHクッキングヒ-タ- 食器洗浄乾燥機
・浴室暖房乾燥機 浴室1坪以上 追焚機能 
・玄関収納 
・1F 16.0LDK 和3.0帖
 2F 5.23帖 5.23帖 6.0帖 書斎2.0帖 フリースペース WIC3.0帖
・システムキッチン カウンターキッチン
 温水洗浄便座(1F,2F)

周辺施設

  • 旭中学校の画像

    中学校

    旭中学校

    311m(4分)

  • 高知市塚ノ原窓口センターの画像

    市役所・区役所

    高知市塚ノ原窓口センター

    359m(5分)

  • サンプラザ 塚ノ原店の画像

    スーパー

    サンプラザ 塚ノ原店

    380m(5分)

  • エースワン 横内店の画像

    スーパー

    エースワン 横内店

    473m(6分)

  • 横内小学校の画像

    小学校

    横内小学校

    736m(10分)

  • 高知信用金庫横内支店の画像

    銀行

    高知信用金庫横内支店

    802m(11分)

  • ファミリーマート 高知福井町店の画像

    コンビニエンスストア

    ファミリーマート 高知福井町店

    1426m(18分)

支払いシミュレーション

月々の支払額
購入希望物件価格
万円
頭金
万円
金利
%
返済額(ボーナス1回分)
万円
返済期間

※ボーナスは自動で年2回分で計算されます。

近隣の物件

  1. 福井東町 新築戸建 2号棟 (全2区画)

    高知市福井東町

    3LDK (97.91㎡)

    2,998万円

  2. 福井東町 新築戸建 1号棟 (全2区画)

    高知市福井東町

    3LDK (93.56㎡)

    2,998万円

  3. 城北町 新築戸建

    高知市城北町

    3LDK (102.68㎡)

    3,898万円

  4. 針木南 中古戸建 

    高知市針木南

    4LDK (101.85㎡)

    1,650万円

よく見られている物件

  1. 福井町 中古戸建

    高知市福井町

    2LDK (80.28㎡)

    1,600万円

  2. 新本町 中古戸建 (未入居物件)

    高知市新本町2丁目

    3LDK+3S(納戸) (99.57㎡)

    4,580万円

  3. 海老ノ丸 中古戸建 C区画 (未入居物件 モデルハウス)

    高知市海老ノ丸

    4LDK+S(納戸) (133.05㎡)

    4,580万円

  4. 南国市大そね甲第1 新築戸建 1号棟 

    南国市大そね甲

    4LDK (108.54㎡)

    2,590万円

高知市口細山 新築戸建 1号地(全5区画) 

高知市口細山 新築戸建 1号地(全5区画) 

4,280万円

-

4LDK+S(納戸)(102.96㎡)

お気軽にお問い合わせください

無料お問い合わせ

株式会社 タイヘイ

088-831-1885

9:00~18:00

(休:不定休)