いの町枝川 中古戸建 (未入居物件)

3,290万円

高知県吾川郡いの町枝川

とさでん交通伊野線「八代通」駅徒歩9分

とさでん交通伊野線「宇治団地前」駅徒歩12分

北部「八代二区」バス停

価格
3,290万円
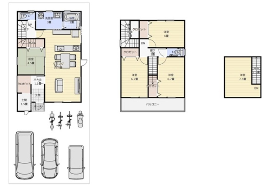
間取り/建物面積
4LDK+S(納戸)/108.35㎡
所在地
高知県吾川郡いの町枝川
築年
2024年9月(築1年)
駐車
有(3台)
交通

とさでん交通伊野線八代通」駅 徒歩9分

とさでん交通伊野線宇治団地前」駅 徒歩12分

北部「八代二区」バス停下車 徒歩2分

いの町枝川 中古戸建 (未入居物件)の基本情報

物件名
いの町枝川 中古戸建 (未入居物件)
価格
3,290万円
建物面積
108.35㎡
土地面積
45.37坪(149.99㎡)
築年月
2024年9月(築1年)
総戸数
1戸
所在地
高知県吾川郡いの町枝川
交通

とさでん交通伊野線八代通」駅 徒歩9分

とさでん交通伊野線宇治団地前」駅 徒歩12分

北部「八代二区」バス停下車 徒歩2分

いの町枝川 中古戸建 (未入居物件)の詳細情報

設備条件
  • 閑静な住宅地
  • 駐車3台可
設備(その他)
    -
駐車場/月額
有(3台)/0円
土地権利
所有権
国土法届出
不要
用途地域
第一種低層住居専用
取引態様
一般媒介
引渡し
相談
備考
こちらは清潔感のある中古戸建(未入居物件)です。駅から徒歩9分の物件です。断熱性の高い省エネ対策物件は、室内の環境を快適に保ちます。吾川郡いの町についてお問い合わせいただければ、地域情報に詳しい当社スタッフが対応いたします。もちろん不動産についてもご連絡くださいませ。

いの町枝川 中古戸建 (未入居物件)のコメント(おすすめポイント)

夏涼しく冬暖かい、理想の環境を実現した省エネ対策の物件です。好評の駅近物件となっており、駅より徒歩9分に立地しています。綺麗で清潔感のある室内が中古戸建て(未入居物件)の特徴です。吾川郡いの町には多種多様な一戸建てがございますので、マイホームの購入をお考えなら、ぜひ当社までご連絡ください。お待ちしております。

いの町枝川 中古戸建 (未入居物件)で募集中の物件

  1. 32.77坪 (108.35㎡)

    3,290万円(100.4万円/坪)

周辺施設

  • 枝川小学校の画像

    小学校

    枝川小学校

    409m(6分)

  • サンシャイン ラヴィーナ店の画像

    スーパー

    サンシャイン ラヴィーナ店

    976m(13分)

  • ローソン 伊野枝川駅前店の画像

    コンビニエンスストア

    ローソン 伊野枝川駅前店

    1358m(17分)

  • サニーアクシス いの店の画像

    スーパー

    サニーアクシス いの店

    2069m(26分)

  • いの町役場の画像

    市役所・区役所

    いの町役場

    3320m(42分)

近隣の物件

  1. 吾川郡いの町枝川

    3LDK (79.48㎡)

    2,860万円

  2. 吾川郡いの町枝川

    3LDK (87.77㎡)

    3,300万円

  3. 吾川郡いの町枝川

    4LDK (103.02㎡)

    2,698万円

  4. 吾川郡いの町枝川

    4LDK (103.02㎡)

    2,898万円

いの町枝川 中古戸建 (未入居物件)

お気軽にお問い合わせください

無料お問い合わせ

株式会社 タイヘイ

088-831-1885

9:00~18:00

(休:不定休)