土佐市高岡町乙 建築条件付き 売土地 東棟(全2区画)

763.2万円

高知県土佐市高岡町

とさでん交通「高岡小学校前」バス停

とさでん交通「井上病院前(高知県)」バス停

とさでん交通「長谷寄北」バス停

価格
763.2万円
坪単価
24万円(31.80坪)
所在地
高知県土佐市高岡町
交通

とさでん交通「高岡小学校前」バス停下車 徒歩3分

とさでん交通「井上病院前(高知県)」バス停下車 徒歩5分

とさでん交通「長谷寄北」バス停下車 徒歩5分

土地面積(坪数)
105.14㎡(31.80坪)
建ぺい率 / 容積率
60% / 200%

セールスポイント

売地をお探しの方にぴったりの土地がこちらです。南側に道路があるため十分な日当たりが確保できます。希望条件に一致する不動産が見つからず、諦め気味になっていませんか。情報網を活かし、鮮度の高い情報収集に努める当社ならきっとあなたのこだわりに応えることができます。ぜひお気軽にお問い合わせください。

ポイント

整備された歩道 分譲地 小学校 徒歩10分以内 市街地が近い 整形地

担当者のコメント

小田 靖之

道路が南側に面しているので、とてもニーズが高いです。周辺環境が充実している売地はこちらです。経験と知識豊富な不動産のプロがあなたの不動産探しをサポートいたします。不動産に関してどのようなことでも疑問や不安があれば、ぜひお気軽にお問い合わせください。

※この土地は土地売買契約後3ヶ月以内に建築会社と建物の請負契約を締結することを条件に販売いたします。この期間内に建築請負契約を締結されなかった場合は土地売買契約は白紙となり、受領した手付金等の土地代金は全てお返しすることになります。

◆物件特徴のご案内◆
・全室複層ガラス 食器洗浄乾燥機 IHクッキングヒ-タ- 
・浴室暖房乾燥機 浴室1坪以上 追焚機能 
・玄関収納 
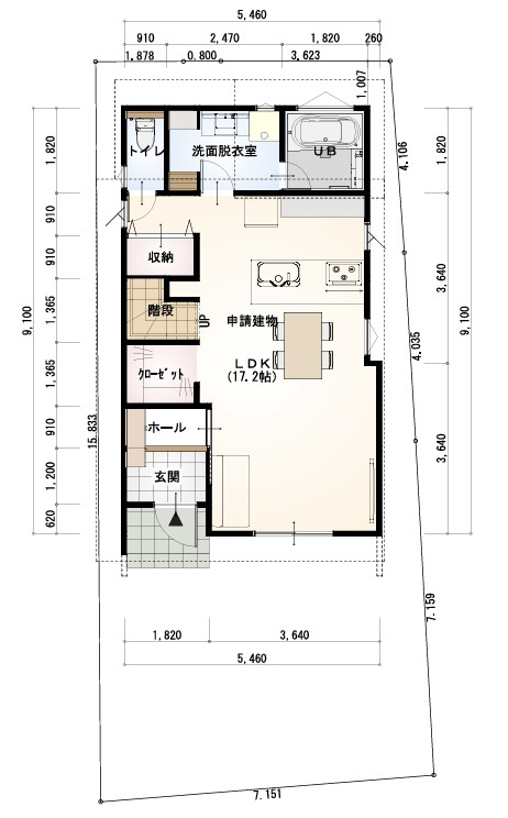
・1F 17.2LDK 
 2F 4.8帖 5.3帖 6.8帖 納戸
・システムキッチン カウンターキッチン
 温水洗浄便座(1F,2F)

基本情報

販売区画数
2区画
総区画数
2区画
土地面積(坪数)
105.14㎡(31.80坪)
坪単価
24万円
私道負担面積
割合
-
セットバック
建ぺい率 /
容積率
60% / 200%
高圧線下面積
-
傾斜地部分面積
-
路地状敷地
-
地目
宅地
地勢
平坦
造成工事
完了予定
-
土地権利
所有権
建築条件
都市計画
非線引区域
用途地域
無指定
接道状況
一方(南 公道 4.0m)
国土法届出要否
不要
最適用途
住宅用地
その他
法令上の制限
-
取引態様
一般媒介
現況
更地
引渡条件
-
引渡時期
相談
開発許可番号
-
取引条件の
有効期限
2026年03月19日

設備条件

設備条件
  • 公営水道 / 駐車2台可
設備(その他)
    -

その他

物件番号
102004810
管理コード
-
情報更新日
2026年03月05日
次回更新予定日
2026年03月19日
取扱会社
  • 株式会社 タイヘイ
  • 高知県高知市桟橋通6丁目8番39号 
  • TEL:088-831-1885
  • 高知県知事 (12) 第001377号
  • 公益社団法人 高知県宅地建物取引業協会
備考
土地の購入をご検討の方にお勧めの売地となっています。南側道路に面しているため、日当たりを確保する事が出来ます。「不動産の知識がない」と不動産購入に関して不安をお持ちではありませんか。当社スタッフが親切丁寧に、どのような些細な疑問・不安にもお答えいたします。ぜひお気軽にお問い合わせください。

周辺施設

  • サンシャイン オリビオ店の画像

    スーパー

    サンシャイン オリビオ店

    337m(5分)

  • 土佐市役所の画像

    市役所・区役所

    土佐市役所

    346m(5分)

  • 愛媛銀行高岡支店の画像

    銀行

    愛媛銀行高岡支店

    347m(5分)

  • 土佐高岡郵便局の画像

    郵便局

    土佐高岡郵便局

    393m(5分)

  • ドラゴン広場の画像

    スーパー

    ドラゴン広場

    412m(6分)

  • ローソン 土佐インター店の画像

    コンビニエンスストア

    ローソン 土佐インター店

    424m(6分)

  • 四国銀行高岡支店の画像

    銀行

    四国銀行高岡支店

    468m(6分)

  • 高岡第一小学校の画像

    小学校

    高岡第一小学校

    498m(7分)

  • セブンイレブン 土佐バイパス店の画像

    コンビニエンスストア

    セブンイレブン 土佐バイパス店

    503m(7分)

  • 高岡中学校の画像

    中学校

    高岡中学校

    607m(8分)

  • 土佐市民病院の画像

    総合病院

    土佐市民病院

    677m(9分)

支払いシミュレーション

月々の支払額
購入希望物件価格
万円
頭金
万円
金利
%
返済額(ボーナス1回分)
万円
返済期間

※ボーナスは自動で年2回分で計算されます。

近隣の物件

  1. 土佐市高岡町丙 9号地 建築条件なし 売土地(全9区画)

    土佐市高岡町丙

    - (138.84㎡)

    1,0497,500

  2. ライフタウン天神 5号地

    土佐市高岡町乙

    - (155.64㎡)

    1,036万円

  3. ライフタウン天神 6号地

    土佐市高岡町乙

    - (143.67㎡)

    957万円

  4. 土佐市高岡町丙 6号地 建築条件なし 売土地(全9区画)

    土佐市高岡町丙

    - (132.56㎡)

    1,0025,000

よく見られている物件

  1. 西秦泉寺 建築条件付き 売土地

    高知市西秦泉寺

    - (216.98㎡)

    2,298万円

  2. 神田 建築条件なし 売土地 

    高知市神田

    - (162.71㎡)

    8857,800

  3. 南国市大そね甲 2号地 建築条件付き 売土地 (全9区画)

    南国市大そね甲

    - (117.05㎡)

    1,0266,000

  4. 野市町西野 建築条件付き 売土地 A-1区画(全37区画)

    香南市野市町西野

    - (218.53㎡)

    1,5864,000

土佐市高岡町乙 建築条件付き 売土地 東棟(全2区画)

土佐市高岡町乙 建築条件付き 売土地 東棟(全2区画)

7632,000

-(105.14㎡)

お気軽にお問い合わせください

無料お問い合わせ

株式会社 タイヘイ

088-831-1885

9:00~18:00

(休:不定休)