介良(中野団地)新築戸建 3号地(西棟)(全2区画)

3,040万円

高知県高知市介良

とさでん交通「中野団地二区」バス停

とさでん交通「中野団地西口」バス停

とさでん交通「中野団地中通」バス停

価格
3,040万円
間取り/建物面積
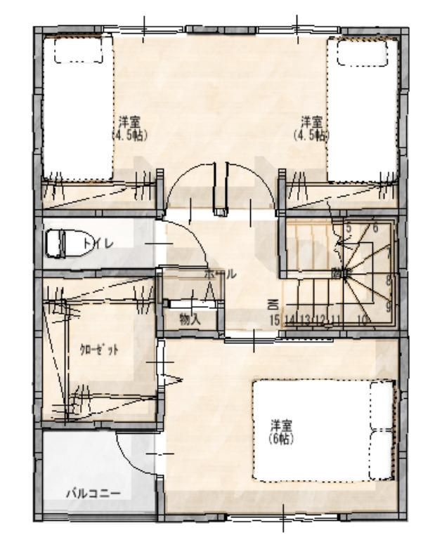
3LDK/84.45㎡
所在地
高知県高知市介良
築年
2026年3月(予定)
駐車
有(2台)
交通

とさでん交通「中野団地二区」バス停下車 徒歩2分

とさでん交通「中野団地西口」バス停下車 徒歩2分

とさでん交通「中野団地中通」バス停下車 徒歩3分

介良(中野団地)新築戸建 3号地(西棟)(全2区画)の基本情報

物件名
介良(中野団地)新築戸建 3号地(西棟)(全2区画)
価格
3,040万円
建物面積
84.45㎡
土地面積
31.38坪(103.76㎡)
築年月
2026年3月(予定)
総戸数
2戸
所在地
高知県高知市介良
交通

とさでん交通「中野団地二区」バス停下車 徒歩2分

とさでん交通「中野団地西口」バス停下車 徒歩2分

とさでん交通「中野団地中通」バス停下車 徒歩3分

介良(中野団地)新築戸建 3号地(西棟)(全2区画)の詳細情報

設備条件
  • 駐車2台可
  • 耐震構造
設備(その他)
    -
駐車場/月額
有(2台)/0円
土地権利
所有権
国土法届出
不要
用途地域
第一種低層住居専用
取引態様
一般媒介
引渡し
相談
備考
南側道路に面した物件です。コチラの物件は、新築の戸建て物件で設備も充実しています。準耐火構造は、火災の拡大を防ぐので非常時にも安心です。不動産をお探しなら、当社をご用命ください。あなたのこだわりの条件に合った不動産がきっと見つかります。ぜひご検討くださいませ。

介良(中野団地)新築戸建 3号地(西棟)(全2区画)のコメント(おすすめポイント)

準耐火構造は、火災の拡大を防ぐので非常時にも安心です。初めてのマイホームに新築戸建てはいかがでしょうか。お客様から高い評価をいただく南側道路に接している物件です。人生に何度もない不動産購入だからこそ、こだわりを貫いて探したいですよね。当社では数多くの不動産情報を取り扱っております。あなたの不動産探しのお手伝いをさせてください。

介良(中野団地)新築戸建 3号地(西棟)(全2区画)で募集中の物件

  1. 25.54坪 (84.45㎡)

    3,040万円(119.03万円/坪)

周辺施設

  • サンシャイン フレッシュパワー 介良店の画像

    スーパー

    サンシャイン フレッシュパワー 介良店

    318m(4分)

  • 中野保育園の画像

    保育園

    中野保育園

    390m(5分)

  • 中野郵便局の画像

    郵便局

    中野郵便局

    429m(6分)

  • ファミリーマート 高知介良通店の画像

    コンビニエンスストア

    ファミリーマート 高知介良通店

    904m(12分)

  • ファミリーマート 高知介良店の画像

    コンビニエンスストア

    ファミリーマート 高知介良店

    1213m(16分)

  • 介良潮見台小学校の画像

    小学校

    介良潮見台小学校

    1259m(16分)

  • 介良中学校の画像

    中学校

    介良中学校

    1285m(17分)

  • ナンコクスーパー 大津店の画像

    スーパー

    ナンコクスーパー 大津店

    2644m(34分)

近隣の物件

  1. 高知市若草町

    4LDK (150.96㎡)

    3,000万円

  2. 高知市長浜

    3LDK (79.49㎡)

    3,360万円

  3. 高知市石立町

    3SLDK (105.15㎡)

    3,980万円

  4. 高知市宝町

    4SLDK (138.67㎡)

    3,280万円

介良(中野団地)新築戸建 3号地(西棟)(全2区画)

お気軽にお問い合わせください

無料お問い合わせ

株式会社 タイヘイ

088-831-1885

9:00~18:00

(休:不定休)