小津町 新築戸建 4号棟 【内覧可能】

4,660万円

高知県高知市小津町11-7

土讃線「入明」駅徒歩4分

とさでん「宝町」バス停

とさでん「入明町」バス停

価格
4,660万円
間取り
3LDK
土地面積
139.22㎡
所在地
高知県高知市小津町11-7
交通

土讃線入明」駅 徒歩4分

とさでん「宝町」バス停下車 徒歩3分

とさでん「入明町」バス停下車 徒歩3分

建物面積
105.17㎡
築年月
2026年1月(新築)

物件の特徴

  • カウンターキッチン

  • 浴室乾燥機

セールスポイント

デザイン性のあるシステムキッチン付きなので、キッチンがお洒落なスペースになっています。広々としたリビングに充実設備のキッチンを備えた3LDK。新築戸建てはみんなの夢です。浴室乾燥機のあるお風呂場は洗濯物を干すときにも便利です。夢のマイホームの購入を当社スタッフがサポートいたします。一戸建て情報を豊富に扱っているので、まずはお気軽にご連絡くださいませ。

ポイント

駐車2台可 市街地が近い 浴室暖房 整備された歩道 システムキッチン

担当者のコメント

小田 靖之

バス停が徒歩3分圏内にあります。駅から徒歩4分に位置する、魅力的な駅近物件です。浴室乾燥機のあるお風呂場は洗濯物を干すときにも便利です。新築戸建ての物件は清潔感もあり、快適な生活が可能です。高知市にある一戸建てのお問い合わせは、当社が承っております。マイホームの購入を検討しているお客様のサポートを致します。

基本情報

販売戸数
1戸
総戸数
4戸
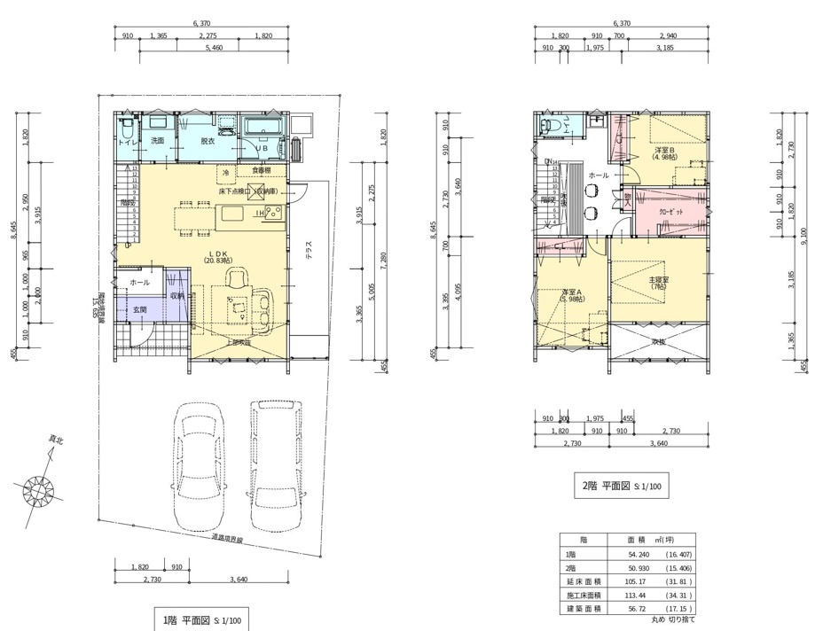
間取り / 詳細
3LDK
LDK 20.8帖/洋室 4.9帖/洋室 5.9帖/洋室 7.0帖
向き
建物面積(坪数)
105.17㎡(31.81坪)
土地面積(坪数)
139.22㎡(42.11坪)
建ぺい率 /
容積率
60%/200%
築年月
2026年1月(新築)
駐車場 / 月額
有(2台) / 0円
土地権利
所有権
土地
(敷金 / 保証金)
- / -
建物構造
木造 / 2階建
傾斜地部分面積
-
路地状敷地
-
私道負担面積
-
セットバック
高圧線下面積
-
施工会社
-
用途地域
第一種住居
地目 / 地勢
宅地 / 平坦
接道状況
一方(南 公道 間口 8.2m)
国土法届出要否
不要
都市計画
市街化区域
総区画数 /
販売区画数
4区画/1区画
現況
完成済み
その他
法令上の制限
景観法/都市再生特別地区/日影制限有/建築基準法第22条区域
取引態様
一般媒介
引渡し
相談
その他条件
上下水道負担金一括:75万7,980円
取引条件の
有効期限
2026年05月21日

設備条件

設備条件
  • 閑静な住宅地 / 公営水道 / 公共下水 / 駐車2台可 / 耐震構造 / システムキッチン / カウンターキッチン / 追焚機能浴室 / 浴室乾燥機 / 温水洗浄便座 / トイレ2ヶ所 / 浴室1坪以上 / 浴室暖房 / 床下収納 / ウォークインクロゼット / 複層ガラス
設備(その他)
    -

その他

物件番号
88011590
管理コード
-
建築確認番号
第R06-00602号
情報更新日
2026年05月07日
次回更新予定日
2026年05月21日
取扱会社
  • 株式会社 タイヘイ
  • 高知県高知市桟橋通6丁目8番39号 
  • TEL:088-831-1885
  • 高知県知事 (12) 第001377号
  • 公益社団法人 高知県宅地建物取引業協会
備考
駅まで徒歩4分なので、移動時間を短縮できます。快適な生活を送れる3LDKの物件情報あります。風呂の湯が冷めた時も追焚機能浴室があるので便利です。近所の歩道は自転車と歩行者の通路が分けられているので歩きやすいです。不動産情報はもちろん、地域情報も詳しくお伝え致します。高知市で生活するにあたって気になる点があれば、ぜひご質問くださいませ。

◆物件特徴のご案内◆
・全室複層ガラス 
・浴室暖房乾燥機 浴室1坪以上 追焚機能 
・玄関収納 
・1F 20.83LDK 
 2F 4.96帖5.96帖7.0帖
・システムキッチン カウンターキッチン
 温水洗浄便座(1F,2F)

周辺施設

  • ローソン 高知小津町店の画像

    コンビニエンスストア

    ローソン 高知小津町店

    326m(5分)

  • ローソン 高知入明町の画像

    コンビニエンスストア

    ローソン 高知入明町

    422m(6分)

  • 城北中学校の画像

    中学校

    城北中学校

    445m(6分)

  • 小高坂小学校の画像

    小学校

    小高坂小学校

    603m(8分)

  • ファミリーマート 高知伊勢崎町店の画像

    コンビニエンスストア

    ファミリーマート 高知伊勢崎町店

    730m(10分)

  • コープ 吉田店の画像

    スーパー

    コープ 吉田店

    1091m(14分)

  • サニーマート万々店の画像

    スーパー

    サニーマート万々店

    1439m(18分)

  • イオンモール 高知店の画像

    ショッピングセンター

    イオンモール 高知店

    2458m(31分)

支払いシミュレーション

月々の支払額

※実際の金額と異なる場合があります。

購入希望物件価格
万円
頭金
万円
金利
%
返済額(ボーナス1回分)
万円
返済期間

※ボーナスは自動で年2回分で計算されます。

近隣の物件

  1. 朝倉本町2丁目 中古戸建 

    高知市朝倉本町2丁目

    4SLDK (151.63㎡)

    2,480万円

  2. 朝倉丙 新築戸建 F号棟(全2棟)

    高知市朝倉丙

    4LDK (98.36㎡)

    2,880万円

  3. 朝倉丙 新築戸建 A号棟(全2棟)

    高知市朝倉丙

    4LDK (105.98㎡)

    2,980万円

  4. 長浜 中古戸建 (築浅物件)

    高知市長浜

    3LDK (106.81㎡)

    2,980万円

よく見られている物件

  1. 福井町 中古戸建

    高知市福井町

    2LDK (80.28㎡)

    1,600万円

  2. 新本町 中古戸建 (未入居物件)

    高知市新本町2丁目

    3LDK+3S(納戸) (99.57㎡)

    4,580万円

  3. 海老ノ丸 中古戸建 C区画 (未入居物件 モデルハウス)

    高知市海老ノ丸

    4LDK+S(納戸) (133.05㎡)

    4,580万円

  4. 鴨部B号地 中古戸建(未入居)

    高知市鴨部3丁目

    4LDK+S(納戸) (104.13㎡)

    3,580万円

小津町 新築戸建 4号棟 【内覧可能】

小津町 新築戸建 4号棟 【内覧可能】

4,660万円

-

3LDK(105.17㎡)

お気軽にお問い合わせください

無料お問い合わせ

株式会社 タイヘイ

088-831-1885

9:00~18:00

(休:不定休)