潮新町 新築戸建 

3,180万円

高知県高知市潮新町1丁目

とさでん交通桟橋線「桟橋通二丁目」駅徒歩4分

とさでん交通桟橋線「桟橋通一丁目」駅徒歩5分

とさでん「桟橋通2丁目 」バス停

価格
3,180万円
間取り/建物面積
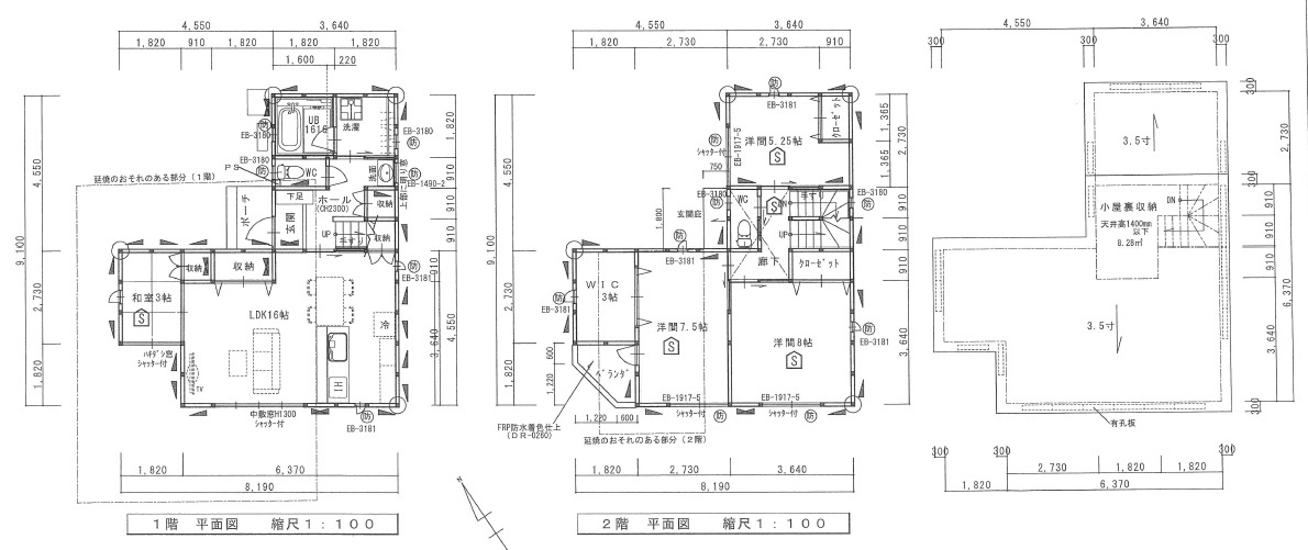
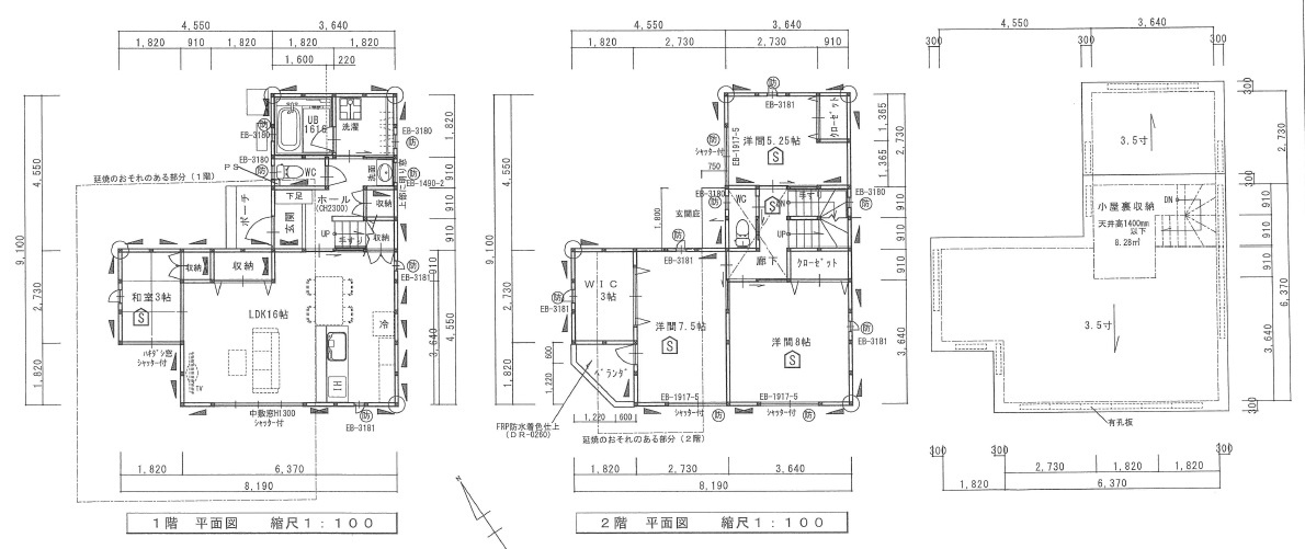
3LDK+S(納戸)/101.02㎡
所在地
高知県高知市潮新町1丁目
築年
2025年5月(新築)
駐車
有(2台)
交通

とさでん交通桟橋線桟橋通二丁目」駅 徒歩4分

とさでん交通桟橋線桟橋通一丁目」駅 徒歩5分

とさでん「桟橋通2丁目 」バス停下車 徒歩4分

潮新町 新築戸建 の基本情報

物件名
潮新町 新築戸建 
価格
3,180万円
建物面積
101.02㎡
土地面積
30.85坪(102.01㎡)
築年月
2025年5月(新築)
総戸数
1戸
所在地
高知県高知市潮新町1丁目
交通

とさでん交通桟橋線桟橋通二丁目」駅 徒歩4分

とさでん交通桟橋線桟橋通一丁目」駅 徒歩5分

とさでん「桟橋通2丁目 」バス停下車 徒歩4分

潮新町 新築戸建 の詳細情報

設備条件
  • 閑静な住宅地
  • 駐車2台可
設備(その他)
    -
駐車場/月額
有(2台)/-
土地権利
所有権
国土法届出
不要
用途地域
第一種住居
取引態様
一般媒介
引渡し
相談
備考
日当たりがよく、冬場でも明るい南西側道路に面しています。省エネルギー対策により断熱性も高く、空調設備費も抑えられます。外壁材としてサイディングを使用している物件です。一生に一度のマイホーム探しは、ぜひ新築戸建てで。不動産をお探しなら、当社をご用命ください。あなたのこだわりの条件に合った不動産がきっと見つかります。ぜひご検討くださいませ。

潮新町 新築戸建 のコメント(おすすめポイント)

戸建て物件をご検討なら、コチラの新築の物件をご覧ください。断熱性の高い省エネルギー対策済み物件です。忙しい方におすすめの、駅徒歩4分の物件です。地盤が弱いと大惨事になりかねませんので地盤調査はとても大切です。不動産購入で失敗しないように、豊富な経験と知識を持つ当社がしっかりとサポートを行います。ご希望の条件がございましたら、当社スタッフにお聞かせください。

潮新町 新築戸建 で募集中の物件

  1. 30.55坪 (101.02㎡)

    3,180万円(104.09万円/坪)

周辺施設

  • 潮江東小学校の画像

    小学校

    潮江東小学校

    289m(4分)

  • エースワン潮江店の画像

    スーパー

    エースワン潮江店

    293m(4分)

  • セブンイレブン 高知桟橋通1丁目店の画像

    コンビニエンスストア

    セブンイレブン 高知桟橋通1丁目店

    319m(4分)

  • ローソン 高知潮新町二丁目店の画像

    コンビニエンスストア

    ローソン 高知潮新町二丁目店

    478m(6分)

  • 毎日屋 さんばし店の画像

    スーパー

    毎日屋 さんばし店

    653m(9分)

  • 潮江中学校の画像

    中学校

    潮江中学校

    866m(11分)

近隣の物件

  1. 高知市福井東町

    3LDK (97.91㎡)

    2,998万円

  2. 高知市福井東町

    3LDK (93.56㎡)

    2,998万円

  3. 高知市潮見台2丁目

    4SLK (149.84㎡)

    2,180万円

  4. 高知市針木南

    4LDK (101.85㎡)

    1,650万円

よく見られている物件

  1. 高知市福井町

    2LDK (80.28㎡)

    1,600万円

  2. 高知市新本町2丁目

    3LDK+3S(納戸) (99.57㎡)

    4,580万円

  3. 高知市海老ノ丸

    4LDK+S(納戸) (133.05㎡)

    4,580万円

  4. 南国市大そね甲

    4LDK (108.54㎡)

    2,590万円

潮新町 新築戸建 

お気軽にお問い合わせください

無料お問い合わせ

株式会社 タイヘイ

088-831-1885

9:00~18:00

(休:不定休)