介良(中野団地)新築戸建 4号地(東棟)(全2区画)

3,085万円

高知県高知市介良

とさでん交通「中野団地二区」バス停

とさでん交通「中野団地西口」バス停

とさでん交通「中野団地中通」バス停

価格
3,085万円
間取り/建物面積
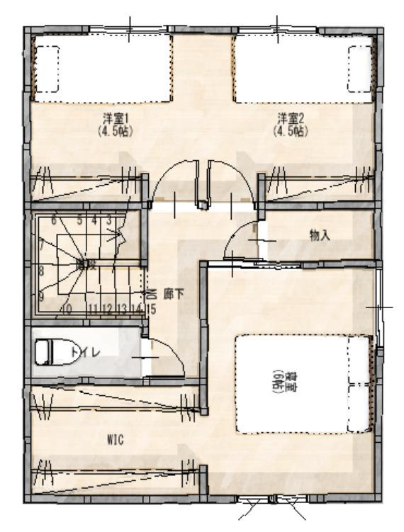
3LDK/82.80㎡
所在地
高知県高知市介良
築年
2026年3月(予定)
駐車
有(2台)
交通

とさでん交通「中野団地二区」バス停下車 徒歩2分

とさでん交通「中野団地西口」バス停下車 徒歩2分

とさでん交通「中野団地中通」バス停下車 徒歩3分

介良(中野団地)新築戸建 4号地(東棟)(全2区画)の基本情報

物件名
介良(中野団地)新築戸建 4号地(東棟)(全2区画)
価格
3,085万円
建物面積
82.80㎡
土地面積
31.19坪(103.12㎡)
築年月
2026年3月(予定)
総戸数
2戸
所在地
高知県高知市介良
交通

とさでん交通「中野団地二区」バス停下車 徒歩2分

とさでん交通「中野団地西口」バス停下車 徒歩2分

とさでん交通「中野団地中通」バス停下車 徒歩3分

介良(中野団地)新築戸建 4号地(東棟)(全2区画)の詳細情報

設備条件
  • 駐車2台可
  • 耐震構造
設備(その他)
    -
駐車場/月額
有(2台)/0円
土地権利
所有権
国土法届出
不要
用途地域
第一種低層住居専用
取引態様
一般媒介
引渡し
相談
備考
歩いて318mの場所に、サンシャイン フレッシュパワー 介良店があります。準耐火構造は、火災の拡大を防ぐので非常時にも安心です。コチラの物件は、新築の戸建て物件で設備も充実しています。開放感を味わうことが出来る南側道路に面した物件です。不動産の購入は人生の中でも大きなお買い物だと言われています。そんな大きなお買い物で失敗しないためにも、購入をお考えの際は不動産のプロである当社スタッフにお任せください。

介良(中野団地)新築戸建 4号地(東棟)(全2区画)のコメント(おすすめポイント)

道路が南側に面しているので、とてもニーズが高いです。多くの方にニーズの高い、準耐火構造の物件なので、安心です。こだわりのある方も多い、新築の戸建て物件となっております。住んだことの無い場所で不動産をお探しなら、当社にお任せください。地元を知り尽くしたスタッフがあなたのサポートを致します。ぜひご検討ください。

介良(中野団地)新築戸建 4号地(東棟)(全2区画)で募集中の物件

  1. 25.04坪 (82.80㎡)

    3,085万円(123.2万円/坪)

周辺施設

  • サンシャイン フレッシュパワー 介良店の画像

    スーパー

    サンシャイン フレッシュパワー 介良店

    318m(4分)

  • 中野保育園の画像

    保育園

    中野保育園

    390m(5分)

  • 中野郵便局の画像

    郵便局

    中野郵便局

    429m(6分)

  • ファミリーマート 高知介良通店の画像

    コンビニエンスストア

    ファミリーマート 高知介良通店

    904m(12分)

  • ファミリーマート 高知介良店の画像

    コンビニエンスストア

    ファミリーマート 高知介良店

    1213m(16分)

  • 介良潮見台小学校の画像

    小学校

    介良潮見台小学校

    1259m(16分)

  • 介良中学校の画像

    中学校

    介良中学校

    1285m(17分)

  • ナンコクスーパー 大津店の画像

    スーパー

    ナンコクスーパー 大津店

    2644m(34分)

近隣の物件

  1. 高知市若草町

    4LDK (150.96㎡)

    3,000万円

  2. 高知市長浜

    3LDK (79.49㎡)

    3,360万円

  3. 高知市石立町

    3SLDK (105.15㎡)

    3,980万円

  4. 高知市宝町

    4SLDK (138.67㎡)

    3,280万円

介良(中野団地)新築戸建 4号地(東棟)(全2区画)

お気軽にお問い合わせください

無料お問い合わせ

株式会社 タイヘイ

088-831-1885

9:00~18:00

(休:不定休)