中須賀町(第1) 新築戸建 3号棟【全3区画】

2月1日 値下げ

3,990万円

高知県高知市中須賀町

とさでん交通伊野線「旭町一丁目」駅徒歩4分

土讃線「旭」駅徒歩6分

とさでん交通「旭町一丁目(高知県)」バス停

価格
3,990万円
間取り
4LDK
土地面積
111.08㎡
所在地
高知県高知市中須賀町
交通

とさでん交通伊野線旭町一丁目」駅 徒歩4分

土讃線」駅 徒歩6分

とさでん交通「旭町一丁目(高知県)」バス停下車 徒歩4分

建物面積
95.17㎡
築年月
2026年2月(予定)

物件の特徴

  • TVモニタ付きインターホン

  • カウンターキッチン

  • 浴室乾燥機

セールスポイント

建物面積が95.17㎡でスペースが十分のファミリーにもおすすめの物件です。駅から徒歩4分圏内にある駅近物件です。水道代節約につながる追い焚き機能付きです。4LDKの物件で、開放感のある生活を送る事が出来ます。当社は、高知市のとさでん交通伊野線旭町一丁目付近で住まい探しをサポートしております。お引っ越しを検討しているのであれば、まずはご連絡くださいませ。

ポイント

キッチンに窓 2駅利用可 浴室1坪以上 制震構造 2沿線利用可

担当者のコメント

小田 靖之

駅の近くに立地する、徒歩4分圏内の物件です。来訪者をモニターで確認できるTVインターホン付きです。フラット35Sに対応しています。浴室乾燥機付きの物件は、乾燥機で浴室を乾燥させることができるのでカビの繁殖を防ぐことに役立ちます。不動産について何かお困りのことなどがございましたら、とさでん交通伊野線旭町一丁目周辺の地域に強い当社スタッフまでお問い合わせください。

基本情報

販売戸数
3戸
総戸数
3戸
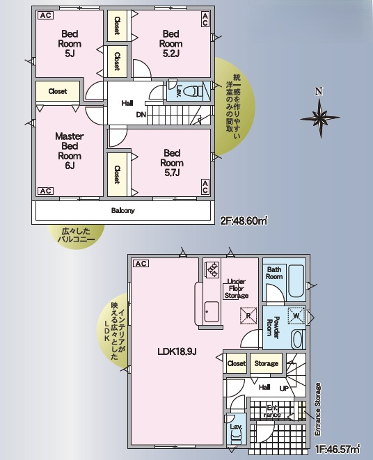
間取り / 詳細
4LDK
LDK 18.9帖/洋室 5.0帖/洋室 5.2帖/洋室 5.7帖/洋室 6.0帖
向き
建物面積(坪数)
95.17㎡(28.78坪)
土地面積(坪数)
111.08㎡(33.60坪)
建ぺい率 /
容積率
60%/200%
築年月
2026年2月(予定)
駐車場 /
月額料金
有(2台) 0円
土地権利
所有権
土地
(敷金 / 保証金)
- / -
建物構造
木造 / 2階建
傾斜地部分面積
-
路地状敷地
-
私道負担面積
-
セットバック
高圧線下面積
-
施工会社
-
用途地域
第一種住居
地目 / 地勢
宅地 / 平坦
接道状況
一方(南 公道 5.0m 間口 8.2m)
国土法届出要否
不要
都市計画
市街化区域
総区画数 /
販売区画数
3区画/3区画
現況
未完成
その他
法令上の制限
景観法/宅地造成及び特定盛土等規制法/準防火地域/都市再生特別地区/日影制限有
取引態様
一般媒介
引渡し
相談
取引条件の
有効期限
2026年02月24日

設備条件

設備条件
  • バルコニー / 都市ガス / 公営水道 / 公共下水 / 24時間換気システム / 駐車2台可 / 耐震構造 / システムキッチン / カウンターキッチン / 追焚機能浴室 / 浴室乾燥機 / 温水洗浄便座 / トイレ2ヶ所 / 浴室1坪以上 / 浴室暖房 / 床下収納 / TVモニタ付インターホン / 複層ガラス / 防犯カメラ
設備(その他)
    -

その他

物件番号
99405709
管理コード
-
建築確認番号
第R07SHC112563号
情報更新日
2026年02月10日
次回更新予定日
2026年02月24日
取扱会社
  • 株式会社 タイヘイ
  • 高知県高知市桟橋通6丁目8番39号 
  • TEL:088-831-1885
  • 高知県知事 (12) 第001377号
  • 公益社団法人 高知県宅地建物取引業協会
備考
ファミリーマート 高知旭町店まで徒歩5分と近場にコンビニがあるのもポイント。きれい好きな方など幅広い層の方にお勧めの新築戸建て物件で清々しい新生活を。当社スタッフが高知市での住まい探しをサポート致しますので、まずはお気軽にお問い合わせください。その際、ご希望条件なども併せてお伝えいただけるとよりスムーズです。

◆物件特徴のご案内◆
・フラット35S金利Aタイプ仕様
・全室複層ガラス 浄水器 3口コンロ 
・浴室暖房乾燥機 浴室1坪以上 追焚機能 
・玄関収納 
・1F 18.9LDK 
 2F 5.0帖 5.2帖 5.7帖 6.0帖
・システムキッチン カウンターキッチン
 温水洗浄便座(1F,2F)

周辺施設

  • サニーマート 山手店の画像

    スーパー

    サニーマート 山手店

    292m(4分)

  • 愛育会保育園の画像

    保育園

    愛育会保育園

    346m(5分)

  • ファミリーマート 高知旭町店の画像

    コンビニエンスストア

    ファミリーマート 高知旭町店

    383m(5分)

  • ローソン 高知旭町店の画像

    コンビニエンスストア

    ローソン 高知旭町店

    464m(6分)

  • 旭東小学校の画像

    小学校

    旭東小学校

    517m(7分)

  • 四国銀行旭支店の画像

    銀行

    四国銀行旭支店

    522m(7分)

  • 高知市旭保育園の画像

    保育園

    高知市旭保育園

    541m(7分)

  • マルナカ 旭店の画像

    スーパー

    マルナカ 旭店

    638m(8分)

  • 高知銀行旭支店の画像

    銀行

    高知銀行旭支店

    653m(9分)

  • 高知旭郵便局の画像

    郵便局

    高知旭郵便局

    784m(10分)

  • 城西中学校の画像

    中学校

    城西中学校

    1106m(14分)

支払いシミュレーション

月々の支払額
9.6
購入希望物件価格
万円
頭金
万円
金利
%
返済額(ボーナス1回分)
万円
返済期間

※ボーナスは自動で年2回分で計算されます。

近隣の物件

  1. 城北町 新築戸建

    高知市城北町

    3LDK (102.68㎡)

    3,898万円

  2. 針木南 中古戸建 

    高知市針木南

    4LDK (101.85㎡)

    1,650万円

  3. 潮見台2丁目 中古戸建

    高知市潮見台2丁目

    4SLK (149.84㎡)

    2,180万円

  4. 福井東町 新築戸建 1号棟 (全2区画)

    高知市福井東町

    3LDK (93.56㎡)

    2,998万円

中須賀町(第1) 新築戸建 3号棟【全3区画】

中須賀町(第1) 新築戸建 3号棟【全3区画】

3,990万円

-

4LDK(95.17㎡)

お気軽にお問い合わせください

無料お問い合わせ

株式会社 タイヘイ

088-831-1885

9:00~18:00

(休:不定休)