瀬戸南町1丁目 東 建築条件付き 売土地 (全2区画)

970万円

高知県高知市瀬戸南町1丁目

とさでん交通「長浜バイパス別」バス停

とさでん交通「団地南口(高知県)」バス停

とさでん交通「瀬戸横丁」バス停

価格
970万円
坪単価
26.35万円(36.81坪)
所在地
高知県高知市瀬戸南町1丁目
交通

とさでん交通「長浜バイパス別」バス停下車 徒歩4分

とさでん交通「団地南口(高知県)」バス停下車 徒歩6分

とさでん交通「瀬戸横丁」バス停下車 徒歩8分

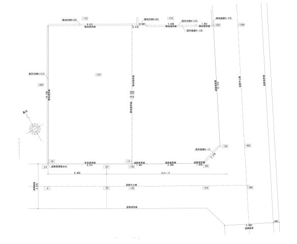
土地面積(坪数)
121.69㎡(36.81坪)
建ぺい率 / 容積率
50% / 80%

セールスポイント

近くにはセブンイレブン 高知瀬戸南町1丁目店(徒歩3分)がありちょっとした買い物に便利です。土地の購入をお考えの方、コチラの売地をご覧ください。接道幅10m以上となっております。不動産探しは経験豊富な不動産のプロフェッショナルが揃う当社にお任せください。お客様にご満足いただけるよう、親切丁寧なサポートを心がけております。

ポイント

平坦地 角地 陽当り良好 分譲地 周辺交通量少なめ

担当者のコメント

小田 靖之

セブンイレブン 高知瀬戸南町1丁目店まで徒歩3分と近場にコンビニがあるのもポイント。コチラは売地の情報となっています。土地購入をお考えの方は是非。接道10メートル以上あると非常時にも役立ちます。土地選びで何かお困りの点がございましたら、お気軽にお問い合わせください。当社スタッフと一緒に、お客様のご希望の条件に合った土地を探しましょう。

基本情報

販売区画数
-
総区画数
-
土地面積(坪数)
121.69㎡(36.81坪)
坪単価
26.35万円
私道負担面積
割合
-
セットバック
建ぺい率 /
容積率
50% / 80%
高圧線下面積
-
傾斜地部分面積
-
路地状敷地
-
地目
宅地
地勢
平坦
造成工事
完了予定
-
土地権利
所有権
建築条件
都市計画
市街化区域
用途地域
第一種低層住居専用
接道状況
一方(東 公道 5.0m 間口 12.4m)(南 公道 4.5m 間口 7.3m)
国土法届出要否
不要
最適用途
住宅用地
その他
法令上の制限
景観法/都市再生特別地区/建築基準法第22条区域
取引態様
一般媒介
現況
更地
引渡条件
-
引渡時期
相談
開発許可番号
-
その他条件
 ※この土地は土地売買契約後3ヶ月以内に建築会社と建物の請負契約を締結することを条件に販売いたします。この期間内に建築請負契約を締結されなかった場合は土地売買契約は白紙となり、受領した手付金等の土地代金は全てお返しすることになります。
取引条件の
有効期限
2026年03月19日

設備条件

設備条件
  • 陽当り良好 / 公営水道 / 公共下水
設備(その他)
    -

その他

物件番号
95438921
管理コード
-
情報更新日
2026年03月05日
次回更新予定日
2026年03月19日
取扱会社
  • 株式会社 タイヘイ
  • 高知県高知市桟橋通6丁目8番39号 
  • TEL:088-831-1885
  • 高知県知事 (12) 第001377号
  • 公益社団法人 高知県宅地建物取引業協会
備考
※この土地は土地売買契約後3ヶ月以内に建築会社と建物の請負契約を締結することを条件に販売いたします。この期間内に建築請負契約を締結されなかった場合は土地売買契約は白紙となり、受領した手付金等の土地代金は全てお返しすることになります。

近くにはセブンイレブン 高知瀬戸南町1丁目店(徒歩3分)がありちょっとした買い物に便利です。コチラの土地は売地となっており、土地購入予定の方にお勧めです。住まい探しは税金や住宅ローンなど考えなくてはいけない難しい事がたくさんあります。そんなお客様の疑問・質問を不動産のプロがわかりやすく解説いたします。ぜひお気軽にお問い合わせください。

周辺施設

  • セブンイレブン 高知瀬戸南町1丁目店の画像

    コンビニエンスストア

    セブンイレブン 高知瀬戸南町1丁目店

    207m(3分)

  • 高知信用金庫瀬戸支店の画像

    銀行

    高知信用金庫瀬戸支店

    409m(6分)

  • ファミリーマート 高知瀬戸店の画像

    コンビニエンスストア

    ファミリーマート 高知瀬戸店

    513m(7分)

  • サニーマート 瀬戸店の画像

    スーパー

    サニーマート 瀬戸店

    527m(7分)

  • 高知瀬戸西町郵便局の画像

    郵便局

    高知瀬戸西町郵便局

    798m(10分)

  • 瀬戸保育園の画像

    保育園

    瀬戸保育園

    1046m(14分)

  • 横浜小学校の画像

    小学校

    横浜小学校

    1072m(14分)

  • 高知銀行長浜支店の画像

    銀行

    高知銀行長浜支店

    1190m(15分)

  • 長浜病院の画像

    内科

    長浜病院

    1275m(16分)

  • 横浜中学校の画像

    中学校

    横浜中学校

    2227m(28分)

支払いシミュレーション

月々の支払額
購入希望物件価格
万円
頭金
万円
金利
%
返済額(ボーナス1回分)
万円
返済期間

※ボーナスは自動で年2回分で計算されます。

近隣の物件

  1. 福井扇町 建築条件付き 売土地

    高知市福井扇町

    - (130.12㎡)

    1,480万円

  2. 神田 建築条件付 売土地 

    高知市神田

    - (219.94㎡)

    1,7297,800

  3. 福井町 建築条件付き 売土地 S号地(全19区画) 

    高知市福井町

    - (137.33㎡)

    1,6608,000

  4. 朝倉丙 D号地 建築条件なし 売土地(全10区画)

    高知市朝倉丙

    - (118.16㎡)

    8577,600

よく見られている物件

  1. 西秦泉寺 建築条件付き 売土地

    高知市西秦泉寺

    - (216.98㎡)

    2,298万円

  2. 神田 建築条件なし 売土地 

    高知市神田

    - (162.71㎡)

    8857,800

  3. 南国市大そね甲 2号地 建築条件付き 売土地 (全9区画)

    南国市大そね甲

    - (117.05㎡)

    1,0266,000

  4. 野市町西野 建築条件付き 売土地 A-1区画(全37区画)

    香南市野市町西野

    - (218.53㎡)

    1,5864,000

瀬戸南町1丁目 東 建築条件付き 売土地 (全2区画)

瀬戸南町1丁目 東 建築条件付き 売土地 (全2区画)

970万円

-(121.69㎡)

お気軽にお問い合わせください

無料お問い合わせ

株式会社 タイヘイ

088-831-1885

9:00~18:00

(休:不定休)